Hansjörg Müller+Partner Architekten AG
Das Architekturbüro wurde 1970 von Hansjörg Müller als Einzelfirma in Aesch BL gegründet und 1990 in eine Aktiengesellschaft umgewandelt.
Seit 2002 führt Lukas Müller, Sohn des Firmengründers, das Büro in zweiter Generation.
1970
Gegründet
4
Mitarbeiter
100+
Projekte
Über uns
Mit Leidenschaft
bei der Arbeit.
bei der Arbeit.
Wir sind ein eingespieltes Team mit langjähriger Berufserfahrung und fundierten Ausbildungen. Mit Liebe zu Detail und fachlicher Kompetenz begleiten wir jedes Projekt vom Entwurf bis zur Bauvollendung.
Neubau
Wenn schönes entsteht.
Wir planen und realisieren individuelle Neubauprojekte – funktional, durchdacht und mit gestalterischem Anspruch. Entdecken Sie eine Auswahl spannender, realisierter Projekte.
Verkaufsprojekte
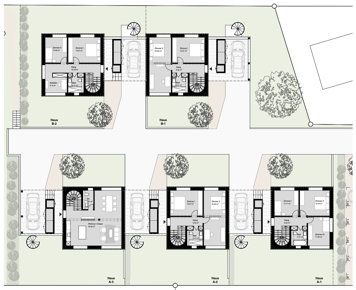
Fünf Einfamilienhäuser am Brüelweg, 4147 Aesch.
Eingebettet in die sanften Hügel des Juras und doch nur wenige Minuten von Basel entfernt, vereint Aesch naturnahe Idylle mit urbanem Komfort.
Hier verschmelzen malerische Landschaften, eine exzellente Infrastruktur und ein charmantes Dorfleben zu einem Wohnort voller Lebensqualität.
Willkommen in Aesch, wo sich Alltag und Erholung perfekt ergänzen!
Vier Doppel-
Einfamilienhäuser am Büneweg, 4114 Hofstetten.
Einfamilienhäuser am Büneweg, 4114 Hofstetten.
Im Herzen von Hofstetten, in der reizvollen Landschaft des Leimentals, umgeben von weitläufigen Wiesen und Wäldern, vereint das Dorf eine natürliche Idylle mit einer ausgezeichneten Anbindung an die Region Basel.
Hier trifft eine gut ausgebaute Infrastruktur auf Ruhe, Sonne und eine hohe Wohn-und Lebensqualität direkt vor der Haustür.
Willkommen in Hofstetten – einem Ort, an dem sich naturnahes Wohnen und Alltag auf ideale Weise verbinden.













